Lindsley Hall
Lindsley Hall | |
![]() Lindsley Hall in January 2014 | |
![]() ![]() | |
| Location | 724 2nd Avenue, South Nashville, Tennessee, U.S. |
|---|---|
| Coordinates | 36°09′15.0″N 86°46′05.0″W / 36.154167°N 86.768056°W |
| Area | 4 acres (1.6 ha) |
| Built | 1853 |
| Architect | Adolphus Heiman |
| Architectural style | Gothic Revival |
| NRHP reference No. | 71000818[1] |
| Added to NRHP | May 6, 1971 |
Lindsley Hall is a historic building in Nashville, Tennessee. Built in the antebellum South as the main building of the University of Nashville, it served as a Union hospital during the Civil War.[2] It became the Nashville Children's Museum in 1945. In 1974 the museum moved to a new facility at 800 Fort Negley Boulevard, became the Cumberland Science Museum and is now known as the Adventure Science Center.[3] The building is once again called Lindsley Hall and is used by the City of Nashville for Metro Government offices.[4]
Location
The building is located at 724 2nd Avenue South in Nashville, the county seat of Davidson County, Tennessee in the Southern United States.[5][6]
History
The building, constructed with grey limestone, was completed in 1853.[6] It was designed by Prussian-born architect Adolphus Heiman in the Gothic Revival architectural style.[6] It was built as the main hall for the University of Nashville while the university was closed from 1850 to 1855 due to a cholera epidemic.[6] It was named Lindsley Hall in honor of Dr John Berrien Lindsley, who served as the Chancellor of the University of Nashville from 1855 to its demise in 1873.[6][7] During the American Civil War, it was turned into a hospital for the Union Army in 1862.[6]
From 1867 to 1905, the building was home to the Montgomery Bell Academy, Peabody College, and the Agricultural and Industrial State Normal College (later renamed Tennessee State University, a historically black university).[6] From 1914 to 1925, it was home to the Vanderbilt University School of Medicine.[6] Later, it was used as an armory for the Tennessee State Guard and as a public health center.[6] The building was the location of the Nashville Children's Museum from 1945 to 1974.[6][8] More recently, it was renovated as an office building to USGBC LEED Silver standard in 2011.[9]
Architectural significance
It has been listed on the National Register of Historic Places since May 6, 1971.[5]
Interior
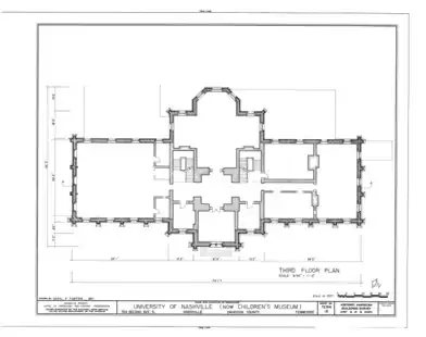
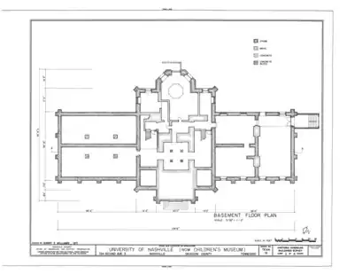
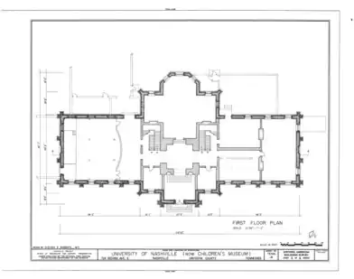
Floor plans
.tif.jpg)
.tif.jpg)
.tif.jpg)
References
- ^ "National Register Information System". National Register of Historic Places. National Park Service. July 9, 2010.
- ^ "Lindsley Hall, The Old and the New". Nashville History blog. September 27, 2015. Retrieved July 19, 2016.
- ^ "Overview". Adventure Science Center. Archived from the original on July 23, 2016. Retrieved July 19, 2016.
- ^ "General Services Department Directory". City of Nashville. Retrieved July 19, 2016.
- ^ a b "Nashville Children's Museum". National Park Service. Retrieved October 8, 2015.
- ^ a b c d e f g h i j "National Register of Historic Places Inventory -- Nomination Form: Nashville Children's Museum, or Lindsley Hall, University of Nashville". National Park Service. Retrieved October 8, 2015. Accompanying photos
- ^ Conkin, Paul Keith (2002). Peabody College: From a Frontier Academy to the Frontiers of Teaching and Learning. Nashville, Tennessee: Vanderbilt University Press. pp. 73–102. ISBN 0826514251. OCLC 50228629.
- ^ "Our History". Adventure Science Center. Retrieved November 26, 2017.
- ^ "Lindsley Hall". U.S. Green Building Council. Retrieved November 26, 2017.
External links
Media related to Lindsley Hall at Wikimedia Commons


