General Israel Putnam House
Gen. Israel Putnam House | |
Putnam House, front view | |
![]() ![]() | |
| Location | 431 Maple St., Danvers, Massachusetts |
|---|---|
| Coordinates | 42°34′57″N 70°58′2″W / 42.58250°N 70.96722°W |
| Built | ca. 1648 |
| NRHP reference No. | 76000235[1] |
| Added to NRHP | April 30, 1976 |
The General Israel Putnam House in Danvers, Massachusetts, United States, is a historic First Period house recorded in the National Register of Historic Places. The house is also sometimes known as the Thomas Putnam House after Lt. Thomas Putnam (1615–1686), who built the home circa 1648. His grandson, Israel Putnam, the famous general of the American Revolution, was born in the house.[2] Lt. Thomas Putnam was the father of Sgt. Thomas Putnam Jr., (Israel's half-uncle), a notorious figure in the Salem witch trials. The Putnam House is now owned by the Emerson Family, the same owners of Putnam Pantry.
Description
The house was built on 100 acres (40 ha) of farmland owned by Lt. Thomas Putnam, and occupied by the Putnam family for over three centuries. In 1692, Joseph Putnam, the resident of the house at that time, spoke out against the hysteria of the Salem witch trials. His son, Major General Israel Putnam, commander of the colonial troops at the Battle of Bunker Hill, was born in the house on January 7, 1718. In 1991, the Putnam family descendants gave the property to the Danvers Historical Society.[3]
The original house has been augmented by repeated additions. Today, it consists of an irregular 2½ story frame structure, with clapboards and with a pitch roof over one part of the house and gambrel roof over another. It is located at 431 Maple Street, behind Putnam Pantry, a candy and ice cream shop opened by the family on U.S. Route 1.
Gallery
-
-
East and west elevations. -
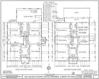
Floor plans. -

See also
- First period houses in Massachusetts (1620–1659)
- List of historic houses in Massachusetts
- List of the oldest buildings in Massachusetts
- National Register of Historic Places listings in Essex County, Massachusetts
References
- ^ "National Register Information System". National Register of Historic Places. National Park Service. March 13, 2009.
- ^ Hubbard, Robert Ernest. Major General Israel Putnam: Hero of the American Revolution, p. 11, McFarland & Company, Inc., Jefferson, North Carolina, 2017. ISBN 978-1-4766-6453-8.
- ^ "The Putnam House". Danvers Historic Society. Archived from the original on January 14, 2014. Retrieved January 13, 2014.
External links


